Grand Horizon Villa - Modular Family Home
Grand Horizon Villa - Modular Family Home
Grand Horizon Villa - Modular Family Home
Grand Horizon Villa - Modular Family Home
Grand Horizon Villa - Modular Family Home
Grand Horizon Villa - Modular Family Home
Grand Horizon Villa - Modular Family Home
Grand Horizon Villa - Modular Family Home

Grand Horizon Villa - Modular Family Home

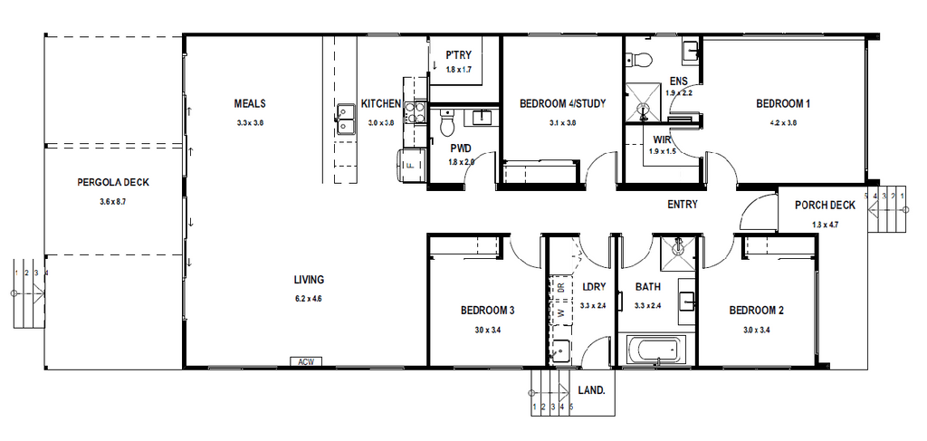
The HCD Grand Horizon Villa is one of our flagship on-site modular home designs in Sri Lanka. This elegant single-storey villa combines modern architecture, eco-friendly construction, and premium finishes to create a home that is stylish, durable and built for family living.

Designed with today’s lifestyle in mind, the Grand Horizon Villa includes four spacious bedrooms, two luxury bathrooms and a generous open-plan living zone that connects seamlessly to an optional deck. With a designer kitchen, butler’s pantry and multiple living spaces, it is perfect for families who value both togetherness and privacy.

  • Bedrooms4
  • Bathrooms2
  • Total Area244 sqm
  • Dimensions19.6 m × 9 m

Why Choose the Grand Horizon Villa?

  • Modern family living. Spacious layout with open-plan living and private bedrooms.
  • Faster construction. Built on-site in just 4 to 6 months using hybrid modular technology.
  • Eco-friendly options. Insulation upgrades, solar hot water and rainwater harvesting available.
  • Premium finishes. Master suite with ensuite, walk-in robe and private balcony.
  • Flexible design. Adaptable for city, coastal or hill-country plots.

Frequently Asked Questions

The Grand Horizon Villa is a single-storey on-site modular home in Sri Lanka. Built with HCD’s hybrid steel and modular system, it provides faster build times, durability and energy efficiency compared to conventional houses.

No. The Grand Horizon Villa is a purpose-built modular villa, not a container conversion. It allows for flexible layouts, larger spaces and premium finishes designed for modern family living.

Most Grand Horizon Villas are completed within 4 to 6 months, depending on site conditions, approvals and chosen upgrades.

The same permits as conventional homes. HCD provides engineering drawings, compliance documents and full support through the approval process in Sri Lanka.

Yes. Options include expanded decks, balconies, smart-home systems, solar hot water, rainwater tanks, insulation upgrades and luxury interiors.

Whether you’re planning a modern home, office, hotel or resort, café, steel warehouse or a custom prefab building, HCD’s expert team is here to turn your vision into reality.
Drop us a message - our team will respond with tailored solutions and next steps.

Want to talk to us direct?
Call our hotline: +94 76 332 8888
Or email: enquiries@hybridcargotecture.com


Back to the top